Mona Vale Tree Grove Memorial Garden

Mona Vale Tree Grove Memorial Garden

With limited ash memorialisation left and a grove of existing Eucalyptus trees-the only land left in the cemetery- the Council sought some ideas on creating a Bushland Memorial Garden around these majestic and much-loved trees.
With stringent constraints around root impact and accessibility for tree management works, the proposed layout is a series of spaces with Artwork and secluded contemplation areas.
Stage 1 is due for construction mid- 2018.

Mona Vale Tree Grove Memorial Garden

Client
Mona Vale, NSW

Location
Campbelltown, NSW

Size 
1,800 m2

Consultancy Type
Lead- Small multi-disciplinary team

Young cemetery Masterplan

Young cemetery Masterplan

Having purchased additional land in the vicinity of the existing cemetery, Council embarked on a Masterplanning exercise, ahead of running out of time, knowing that the development of a new site can take up to 5 years of planning and construction.
With difficult constraints in topography and ecology, the site had a multitude of challenges.
Our services started with public and stakeholder consultation: first at the onset of the project and later, after the formulation of a preliminary Masterplan.
The Final Masterplan, which incorporated community feedback, offers a clear staging plan providing the full range of memorialisation and burial options, outdoor chapel, road network and parking facilities for a progressive and affordable implementation.

Young cemetery Masterplan

Client
Hilltops Council

Location
Young, NSW

Size 
9 Ha

Consultancy Type
Lead- Small multi-disciplinary team

Mongolian Cemeteries

Mongolian Cemeteries

Our company was entrusted with the Masterplan of both the east and west Ulaanbaatar cemeteries, the first private cemeteries in Mongolia.
The “New Mind Group LLC” established their sites in 2012 and 2007 respectively, laying them out in a traditional grid pattern around a central Buddha figure. Unhappy with the result and the barren landscape, they sought guidance for improvements.
After experiencing the funeral procedures and understanding their cultural and religious beliefs, we were able to workshop the solutions with their staff and generate a landscape masterplan which responds to the harsh environment (40 C in summer and minus 35 C in winter) and the restricted plant palette of a 1500m altitude.
It became one of the most fulfilling projects of our practice, working with one the most spiritual and welcoming culture in the world.
East and West cemeteries, Mongolia
Client
New Mind Group LLC
Location
Ulaanbaatar, Mongolia
Size 
2 Ha each
Consultancy Type
Lead
Achievement
First in Mongolia
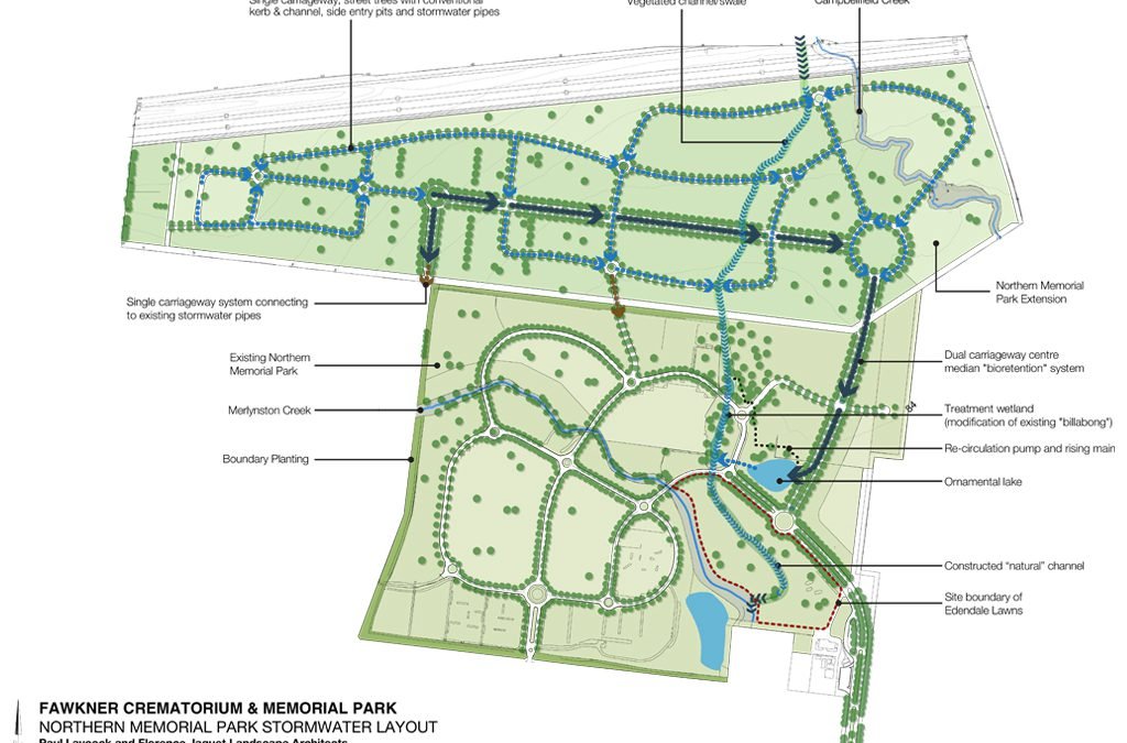
Northern Memorial Park Masterplan

Northern Memorial Park Masterplan

We felt that a stormwater Management strategy was essential to the understanding of the site’s potential together with soil science and ecological assessments.
The cutting-edge water sensitive urban design (The first Stormwater Management Plan of its kind in a cemetery) played a major part in the development of the masterplan for the Northern Memorial Park extension. The complete road layout was designed as a system for the collection and filtration of storm water.
Major axial roads will have wide medians both to become way-finding landmarks and act as large water filtration devices; secondary roads will incorporate car parking and avenue trees planted which capitalise on road run-off.
A simple and easily understood circulation system, in contrast with the somewhat convoluted pattern in the existing southern section, was a major objective, as was the retention of all remnant and ancient River Red Gums.
New trees were placed to strengthen existing character areas, for example, randomly near the existing Redgums and in lines near the more recently planted farm wind breaks. The burial sections were designed with lawn plots flanking the major roads and monumental plots at the perimeter, helping to retain expansive views throughout the site.
Northern Memorial Park Masterplan
Client
Fawkner Crematorium and Memorial Park Trust (now GMCT)
Location
Fawkner , VIC
Size 
52 Ha
Consultancy Type
Lead- Small multi-disciplinary team
Achievement
First cemetery Stormwater Management Plan
Taman Selatan Memorial Park

Taman Selatan Memorial Park

Laycock and Jaquet were appointed a cemetery specialist and Masterplanners for the siting and design of a multi-religious Memorial Park in the new administrative capital of Putrajaya.
Within the overall Memorial Park, five main cemeteries needed to be accommodated: Muslim, Buddhist, Christian, Hindu and General/others, which represent the main religions practiced in Malaysia.
This led to a comprehensive analysis of the site and research into the diverse religious and cultural beliefs of each faith in order to produce a sensitive Masterplan.
The project involved proposals for access and circulation, burial and memorial gardens, site planning for buildings, development of a site identity and creation of landmarks within this large site.
A business report detailing tenure concepts, development and staging of the cemetery as a viable institution for this diverse community was also produced.
Upon approval of the Masterplan, our scope extended to the Design Development of the first stage of implementation for each “stand-alone” cemeteries. Documentation and Contract Administration was carried out under our guidance by the local team.ying burial spaces with no visible headstones, to minimise visual impact.

Taman Selatan Memorial Park

Client
Putrajaya Corporation

Location
Putrajaya, Malaysia

Size 
160 Ha

Consultancy Type
Part of an International team (HK, Malaysia, Australia)